Building Construction Architectural Competition -- 2023
đĄ Project Overview
This project was submitted for the D211 2023 Building Construction Architectural Competition. The challenge was to design a residential structure on a real-world site while meeting specific design criteria and constraints. These included square footage limits, a required minimum number of bedrooms and bathrooms, a flex space, and thoughtful community integration. I used Chief Architect for detailed modeling and layout development, along with professional rendering tools to bring the design to life. The result is a cohesive, functional, and visually compelling architectural proposal that balances aesthetics with real-world practicality.
đ Site Anaylsis
My first step in approaching this project was to visit the site in person and carefully observe how the design requirements could harmonize with the surrounding environment and existing homes. I wanted to ensure that the house wouldnât stand out unnaturally, but rather integrate seamlessly into the neighborhood's architectural rhythm. During my analysis, I took detailed notes on the nearby structures, adjacent forest preserve, natural scenery, site topography, and potential viewpoints for future residents. This observational process helped me understand how to orient the home effectivelyâleveraging key environmental elements such as the sunrise from the east and sunset to the west. These considerations shaped my design decisions and allowed me to craft a home that not only meets technical requirements but also feels rooted in its surroundings.





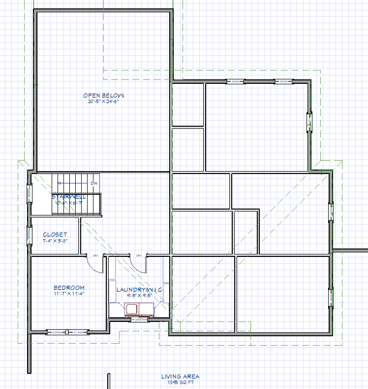
đ Design Iterations of the Second Floor

Initial Concept
The initial concept for the second floor was to incorporate two open belows which would create an open concept feel.

Iteration #2
I played around with multiple different second floor plans to be able to incorporate three bedrooms with as least amount of hallway space as possible.

Iteration #3

Iteration #4

Iteration #5
I realized that I was wasting too much space on the second floor and decided to see how I can shape the space without the entry open below.

Iteration #6
I came to decide this was the final floor plan which maximized the space on the second floor by creating a private little hallway for the master bedroom which connected the master bedroom to the coinciding bathroom.
An architect develops numerous floor plan variations, each exploring different traffic flows, viewpoints, and spatial arrangements. This phase is arguably the most critical part of architectural design, as it requires stepping into the shoes of the future residentâunderstanding how they will move through and experience the space. I dedicated hours, days, even weeks to planning the layout of this home. Of all the spaces, the second floor proved to be the most complex and time-consuming. Above, I walk you through my thought process and the various design iterations that shaped its final form.
đ· Visual Gallery
3D Renderings






The decision to use green siding was intentionalâI wanted the home to blend naturally with the surrounding environment. The site is located in a lush, green neighborhood with a nearby forest preserve, and the exterior color helps the house feel grounded in that setting. From the beginning, I envisioned an open-concept layout that combined the kitchen and living areas. During design discussions with my grandma, she emphasized the importance of having a large, functional kitchenâa value I share, knowing how much space cooking and baking truly require. The expansive, light-filled living rooms not only support this open layout but also give the home a more grand and inviting atmosphere.
Design Board

When tasked with creating a design board, I knew I had to make mine stand out. Drawing on my Photoshop skills and inspired by professional architectural presentations, I crafted a layout that balanced creativity with clarity. I carefully assembled visual elementsâfrom sketches and renderings to annotations and texturesâwhile also integrating my own design sensibility. This board played a central role in the first stage of judging, where panelists walked around and asked questions about each project. I made sure to include key components such as the exterior color scheme, design iterations, load-bearing wall locations, and a variety of photographs that highlight how the home integrates with the neighborhood. The result was a polished, compelling visual summary of both the design process and final outcome.
đ PDF Title Block
Download PDFThis PDF contains the official drawing set provided to each judge during the competition. It served as a professional, easy-to-navigate reference while I presented the design in person. The set includes a comprehensive 3D overview, detailed floor plans, and elevation viewsâgiving engineers, architects, and real estate professionals a clear understanding of the homeâs layout and architectural intent.
đ Competition


The second stage of the competition involved delivering a ten-minute presentation to a panel of judges, followed by the awards ceremony. Presenting my project was a fulfilling experienceâit gave me the opportunity to showcase the effort, thought, and technical understanding behind my design. It was incredibly rewarding to communicate not just what I built, but why I made the choices I did.
đ± Reflection
This project challenged me to think like both a designer and an engineer. I learned how to balance aesthetics with function, how to respond to real-world constraints, and how to present my ideas visually and professionally publicly. The entire processâfrom sketching, modeling, iterating, and presentingâsharpened my architectural and spatial thinking skills. It was a rewarding and formative experience.